Novanni Commercial – 7055GF

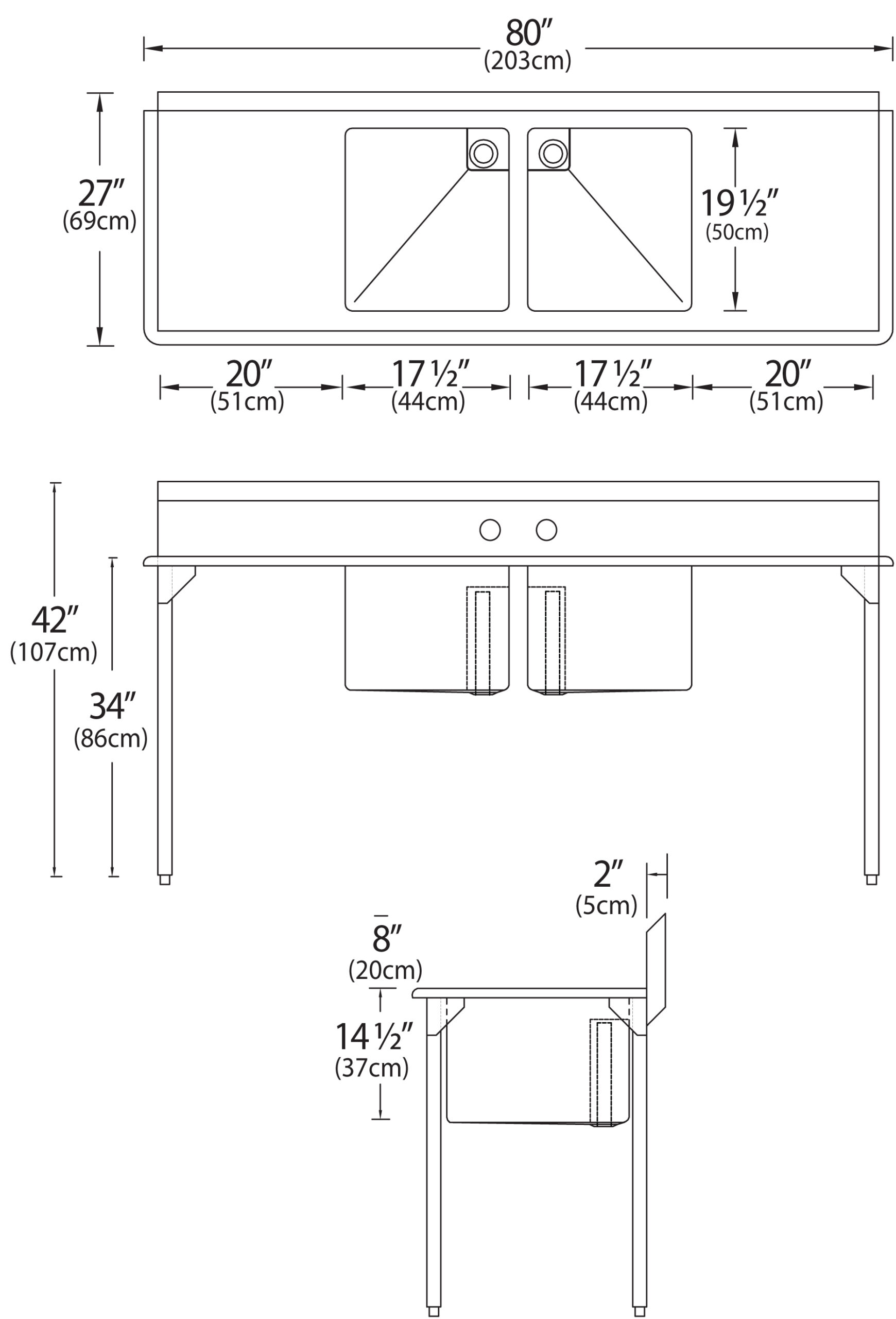
Évier utilitaire sur pattes à deux cuves avec deux égouttoirs intégrés. Dimensions hors-tout de 80 po x 27 po (203 cm x 69 cm), dimensions de la cuve 17 ½ po x 19 ½ po (44 cm x 50 cm) et une profondeur de 14 ½ po (37 cm). Évacuation droite-arrière et gauche-arrière, duplex de 1 ½ po avec trop-plein et garde protectrice inclus, fini satiné brossé, calibre 16, T300.

Additional information

Catégorie d'évier

Éviers utilitaires sur pattes

Matériau

Acier inoxydable

Calibre de l'évier

Calibre 16

Nombre de cuves

2

Profondeur de la cuve

14.5"

Configuration de la cuve

Cuves égales

Emplacement du drain

Gauche arrière, Droite arrière

Fini

Satiné brossé

Spec. Sheet

7055GF Spec. sheet